4009 15A Street SWCalgary, AB T2T 4C8




Mortgage Calculator
Monthly Payment (Est.)
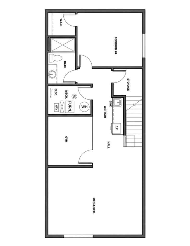
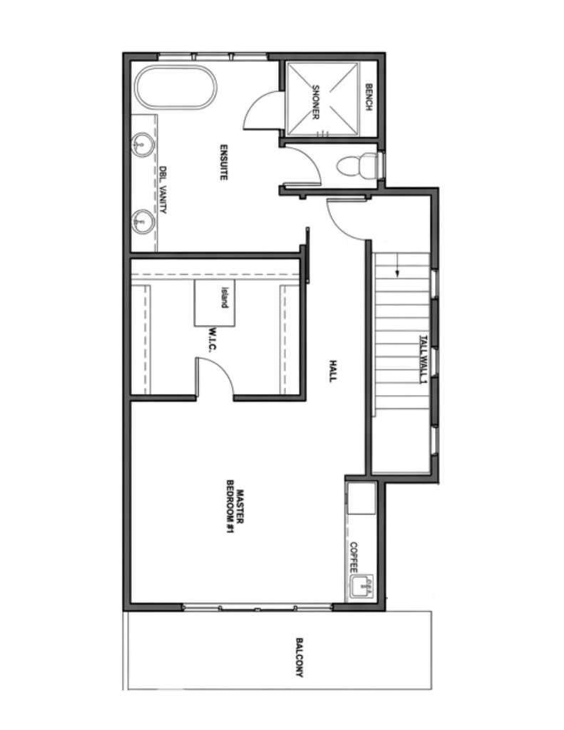
$7,067This gorgeous three-story duplex on a premier Altadore street offers an expansive floor plan meticulously designed for modern living. The main level welcomes you with a formal foyer and an elegant dining room that flows into a chef-inspired kitchen featuring a massive quartz island, a walk-in pantry, and a dedicated pocket office—perfect for working from home. Relax in the sun-filled living room anchored by a sleek gas fireplace, which leads into a functional rear mudroom and a conveniently located powder room. The second level is thoughtfully laid out with three bedrooms and a separate laundry room. This floor includes a spacious secondary master bedroom with its own private ensuite bath and walk-in closet, a second bedroom also featuring a walk-in closet, and a versatile third bedroom. Highlighting the home's unique design, the entire third floor is a private primary retreat, offering ultimate seclusion with a private balcony, a massive walk-in closet with its own center island, and a spa-like ensuite featuring a deep soaker tub, double vanity, and custom shower. The fully developed basement adds even more value with a dedicated home gym, a spacious media room, a stylish wet bar, a fifth bedroom, and ample storage. This stunning property blends luxury and function, situated just steps from the vibrant shops of Marda Loop, top-tier schools, and local parks.
| yesterday | Listing first seen on site | |
| yesterday | Listing updated with changes from the MLS® |
Listing information is provided by Participants of the Alberta One Realty Listing Services (Pillar 9). IDX information is provided exclusively for personal, non-commercial use, and may not be used for any purpose other than to identify prospective properties consumers may be interested in purchasing. Information is deemed reliable but not guaranteed. Copyright 2026, Alberta One Realty Listing Services (Pillar 9)
Last checked 2026-03-25 08:11 AM UTC